Оставить заявку
мы перезвоним или напишем вам
Ваше имя * Телефон *
{town:im}, ул. Братьев Бондаревых 1
Пн-пт с 9:00 до 18:00 stal-ekspert@yandex.ru
+7-922-008-35-58
Обратный звонок
ГлавнаяКаталог › Арматурный цех с антресолью - 1404 м2.

Проект производственного здания из сэндвич панелей Арматурный цех с антресолью 1404 м2 в {town:pr}

Стоимость: от 27 378 000 руб.
Площадь: 1404 м2
Рассчитать стоимость
Рассчитать стоимость строительства
Фундамент
Количество пролетов
Тип кровли
Размеры
Исполнение кровли
Исполнение стен
Площадь остекления
Ширина ворот, м.
Высота ворот, м

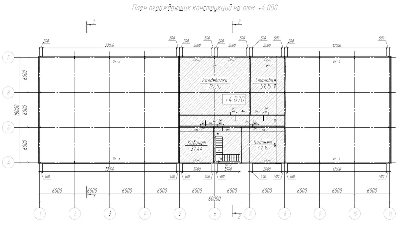
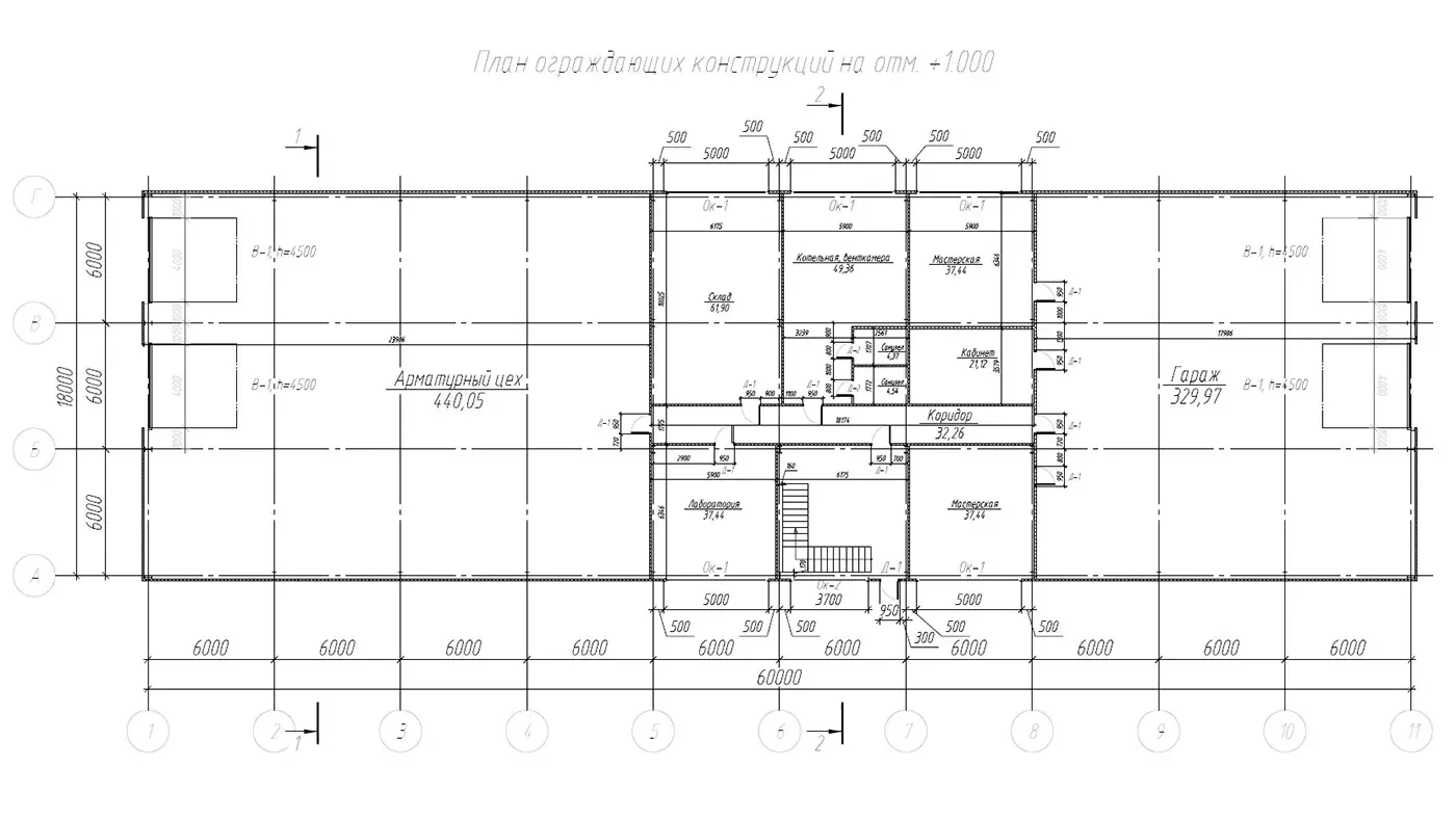
Комплектация состоит из металлокаркаса полностью готового к монтажу. Размеры: 18 х 60 х 6,745 метров площадью - 1404 м2.

 

Конструктивные особенности и материалы

Арматурный цех с антресолью площадью 1404 м2 — это сложное инженерное сооружение, предназначенное для оптимизации рабочего пространства и эффективной организации производства. Каркас из металлоконструкций обеспечивает высокую прочность и долговечность здания. Антресольные перекрытия выполнены из бетона или металла, обеспечивая надежную опору для второго уровня, а стены, изготовленные из сэндвич-панелей или кирпича, гарантируют хорошую шумоизоляцию и энергоэффективность.

Строительные материалы, такие как сталь, бетон и стеклопластик, выбираются с учетом специфики цеха в условиях воздействия различных климатических факторов. Металлоконструкции предпочтительны из-за своей способности выдерживать динамические нагрузки и перепады температуры, защищая внутреннее пространство от атмосферных воздействий и обеспечивая тепловую устойчивость. Использование сэндвич-панелей оптимизирует теплоизоляцию и сокращает временные затраты на строительство.

Преимущества наличия антресоли в арматурном цехе

Антресоль в арматурном цехе способствует более рациональному использованию пространства. Важно отметить, что она существенно увеличивает рабочую площадь, не увеличивая при этом площадь застройки. Это особенно актуально для технологических процессов, требующих интеграции различных производственных линий.

  • Эффективное использование площади: Конструкция цеха в два уровня позволяет освободить основное пространство для крупногабаритного оборудования или организации дополнительных рабочих мест.
  • Функциональное зонирование: Применение антресоли способствует разделению производственного процесса на отдельные стадии, где каждый участок оптимизирован под конкретный этап работы: от хранения до окончательной обработки продукции. Это улучшает логистику и уменьшает временные потери при транспортировке между зонами.
  • Увеличение производственной мощности: Доступность дополнительной площади позволяет устанавливать дополнительное оборудование, расширять цикл обработки материалов и увеличивать производственные объёмы. Например, на антресоли могут быть размещены машины для обработки арматурных изделий или системы хранения готовой продукции.

Планировка и обеспечение безопасности

Планировка арматурного цеха площадью 1404 м² с антресолью требует продуманного подхода для обеспечения безопасности и оптимизации производственных процессов. Пространство должно быть организовано таким образом, чтобы минимизировать риск производственных травм и увеличить производительность. Расположение каждого элемента, будь то оборудование, рабочие станции или зоны хранения, играет ключевую роль. Антресольный этаж создает дополнительное пространство для размещения складских зон или административных офисов, однако безопасный доступ к нему требует установки надежных лестниц и ограждений.

Освещение в цехе должно быть равномерным, с дополнительным акцентом на местах интенсивной работы и манипуляций с материалами. Использование светодиодных систем, которые предоставляют ясный белый свет, могут снизить усталость глаз у рабочих и уменьшить количество ошибок. Зоны, связанные с потенциальными рисками, такими как места, где происходит работа с тяжелыми материалами, нуждаются в ярком освещении и предупреждающих знаках.

Вентиляционная система должна быть запроектирована так, чтобы эффективно удалять пыль, дым и другие примеси из воздуха, создавая комфортные и безопасные условия для рабочих. Установка систем вторичной фильтрации и регулярное техническое обслуживание обеспечат их бесперебойное функционирование.

Одной из главных задач является создание системы пожарной безопасности, отвечающей всем стандартам. Это включает в себя наличие спринклерных установок, использование огнестойких материалов для облицовки стен и потолков, а также подготовка персонала к действиям при возникновении пожара. Наличие четко обозначенных путей эвакуации, свободных от препятствий и оборудованных аварийным освещением, имеет первостепенное значение для быстрого и безопасного выхода сотрудников из здания.

Все зоны работы и передвижения должны быть четко разделены и обозначены. Использование цвета пола, дорожных знаков и маркеров поможет предотвратить путаницу и сократить число несчастных случаев. Дополнительно, регулярное проведение инструктажей по технике безопасности и подтверждение знаний штатного персонала через испытания позволяет снизить риски на производстве.

Комплексный подход к планировке и обеспечению безопасности арматурного цеха с антресолью обеспечивает надежные условия для осуществления производственного процесса, минимизируя угрозы для жизни и здоровья сотрудников, тем самым создавая эффективное и безопасное рабочее пространство.

Кто выбирает ООО "СтальЭксперт"

Иконка Инвесторы.
Инвесторы Инвесторы строят с ООО "СтальЭксперт" легко, безопасно и в срок. Получают здание с гарантией 20 лет.
Иконка Генеральные подрядчики.
Генеральные подрядчики Они не тратят время на закупки материалов, получая комплект здания с гарантией сроков и стыковки всех элементов при монтаже.
Иконка Проектные компании.
Проектные компании Которые быстро реализуют проект с готовым КМ от аттестованного в России проектного подразделения завода.
Иконка Поставщики технологии.
Поставщики технологии Они используют ООО "СтальЭксперт" для презентации заказчикам комплексного предложения на начальном этапе реализации проекта: технология+здание.
Прайс на строительство в {town:pr}
Услуга Еденица измерения Цена (руб.)
Изготовление ангара (базовая конструкция) кв. м 5060
Утепление ангара кв. м 2270
Установка ворот (секционных) шт. 50630
Монтаж вентиляции кв. м 1780
Устройство фундамента кв. м 4570
Доставка материалов км 200
Дополнительные монтажные работы кв. м 2030
Здравствуйте!
Отправляя информацию, вы соглашаетесь с обработкой персональных данных
Отправить